9.5
9580 reviews
Bekijk alle

Joanne Ippel

is aan het typen..

Goedenavond, kan ik u ergens mee helpen?

1

Twee-onder-een-kap woning (bouwnummer 5) in Oosterwolde gld

655.000 v.o.n.
11 foto's
plattegrond
Omschrijving
Wonen in het Groen? Uw Droom Start Hier!

Altijd al gedroomd van een woning in een rustige, groene omgeving? Dit is uw kans! In het charmante dorp Oosterwolde worden 10 royale kavels aangeboden, bestemd voor een twee-onder-één-kapwoning. Bouw hier uw droomhuis helemaal naar wens – of kies voor een instapklare woning van SelektHuis, volledig afgestemd op uw woonwensen.

Waarom kiezen voor Oosterwolde?
- Landelijk wonen met volop rust, ruimte én natuur
- Nabij Elburg, Kampen en Zwolle
- Dagelijkse voorzieningen binnen handbereik
- Basisschool, peuterspeelzaal en meer voor jong & oud
- Dicht bij bossen, heide en het Veluwemeer

Het betreffen kavels van ca. 295 tot 560 m² – veel ruimte, volop mogelijkheden. Zelf bouwen of zorgeloos laten bouwen? U beslist. Ook maatwerk is bespreekbaar.

Het bestemmingsplan (artikel 6 wonen):
De voor 'Wonen' aangewezen gronden zijn bestemd voor:
a. woningen, al dan niet in combinatie met ruimten voor een aan-huis-verbonden beroep of voor een aan-huis-verbonden bedrijfsactiviteit;
b. aan- en uitbouwen, bijgebouwen en overkappingen;
met de daarbij behorende:
c. andere werken;
d. bouwwerken, geen gebouwen en overkappingen zijnde;
e. erven en tuinen;
f. parkeren;
6.2 Bouwregels
1. De totale bebouwde oppervlakte van het bouwperceel mag niet meer bedragen dan 60% ten opzichte van het gehele bouwperceel.
2. Voor het bouwen van hoofdgebouwen gelden de volgende regels:
a. als hoofdgebouwen mogen per bouwvlak maximaal twee-aaneengebouwde woningen worden gebouwd;
b. de bedrijfsvloeroppervlakte ten behoeve van de uitoefening van een aan-huis-verbonden beroep en/of een aan-huis-verbonden bedrijfsactiviteit mag niet meer bedragen dan 40% van de totale gebruiksoppervlakte van de woning inclusief de bijbehorende aan- en uitbouwen en bijgebouwen met een maximum van 100 m2;
c. de maatvoering van de hoofdgebouwen dient te voldoen aan de eisen die in de onderstaande tabel zijn gesteld:
Maximale goothoogte: 6 meter en Maximale bouwhoogte 10 meter
d. een hoofdgebouw mag uitsluitend binnen een bouwvlak worden gebouwd;
e. de afstand van het hoofdgebouw tot de zijdelingse perceelgrens aan de niet aangebouwde zijde niet minder dan 3,00 meter bedragen;
3. Voor het bouwen van aan- en uitbouwen, bijgebouwen en overkappingen op een bouwperceel gelden de volgende regels:
a. aan- en uitbouwen en bijgebouwen dienen minimaal 1,00 meter achter de voorgevel van het hoofdgebouw en het verlengde daarvan te worden gebouwd;
b. de maatvoering van de aan- en uitbouwen, de bijgebouwen en de overkappingen dient te voldoen aan de eisen die in de onderstaande tabel zijn gesteld:
Maximale goothoogte gebouwen: 3,50 meter
Maximale bouwhoogte gebouwen: 5,50 meter
Maximale bouwhoogte overkappingen : 3,00 meter
Maximale gezamenlijke oppervlakte per woning: 100 m2
c. ter plaatse van de aanduiding 'specifieke vorm van wonen - vergunningsvrij bouwen uitgesloten' mogen geen aan-, uitbouwen en bijgebouwen en overkappingen worden gerealiseerd;
4. Voor het bouwen van bouwwerken, geen gebouwen en overkappingen zijnde, gelden de volgende regels:
a. de bouwhoogte van erf- en perceelafscheidingen gelegen achter de voorgevel van het hoofdgebouw en het verlengde daarvan, mag niet meer dan 2,00 meter bedragen;
b. de bouwhoogte van erf- en perceelafscheidingen gelegen voor de voorgevel van het hoofdgebouw en het verlengde daarvan, mag niet meer dan 1,00 meter bedragen;
c. de bouwhoogte van overige bouwwerken, geen gebouwen en overkappingen zijnde, mag niet meer dan 3,00 meter bedragen;

Vraag nu de brochure met impressies en het inschrijfformulier aan via Evink & Petrovic Makelaars of De Passende Woning Makelaardij B.V..
Liever niet digitaal? Bel ons gerust!
Kenmerken
Overdracht
Vraagprijs
655.000 v.o.n.  
Bouw
Soort woonhuis
Eengezinswoning  
Type woonhuis
Twee onder een kapwoning  
Bouwjaar
2026  
Oppervlakten en inhoud
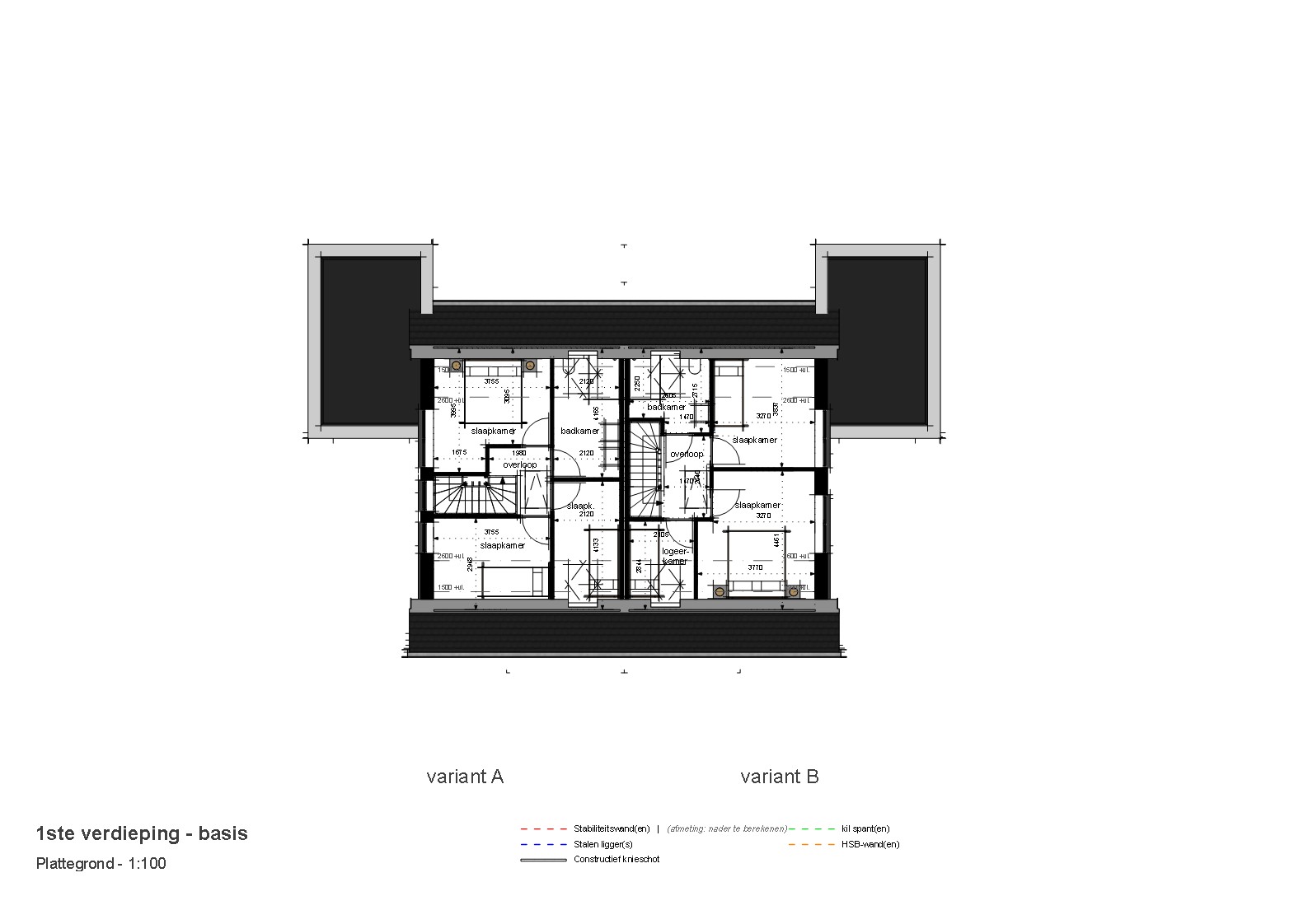
Aantal kamers
4  
Aantal slaapkamers
3  
Inhoud woning
431 m3  
Woonoppervlakte
112 m2  
1 / 11 foto's